Leo Toepoelstraat 23 Castricum
Vraagprijs: € 495.000 k.k.
In de geliefde Leo Toepoelstraat in Castricum staat deze verrassend ruime tussenwoning (99 m² woonoppervlakte) met aanbouw op een perceel van 166 m². Dat betekent: een heerlijk diepe tuin met volop mogelijkheden. Een straat waar koop- en huurwoningen elkaar afwisselen en waar erfpacht vaak voorkomt – maar bij dit huis niet! Het betreft een voormalige huurwoning die door de huidige eigenaar met zorg is verbouwd en verduurzaamd, zodat u kunt genieten van modern wooncomfort in een huis met karakter.
De woonkamer is sfeervol met een balkenplafond en elektrische haard. Twee echte blikvangers die zorgen voor warmte en gezelligheid. Dankzij de royale aanbouw beschikt de woning bovendien over een moderne woonkeuken met openslaande deuren naar de tuin. Verder zijn alle wanden strak gestuukt, is het schilderwerk recent uitgevoerd (achterzijde 2023, voorzijde 2024) en zorgen maar liefst 18 zonnepanelen én het energielabel A voor duurzame en energiezuinige woonlasten.
De Leo Toepoelstraat ligt in een rustige woonwijk van Castricum, op korte afstand van winkels, scholen en sportvoorzieningen. Het levendige dorpscentrum met zijn gezellige horeca en winkels ligt op loopafstand. Voor natuurliefhebbers ligt het Noordhollands Duinreservaat praktisch om de hoek: ideaal voor wandelen, fietsen of een dagje strand. Castricum heeft bovendien een eigen treinstation met directe verbindingen naar Alkmaar, Haarlem en Amsterdam, waardoor u profiteert van een uitstekende bereikbaarheid.
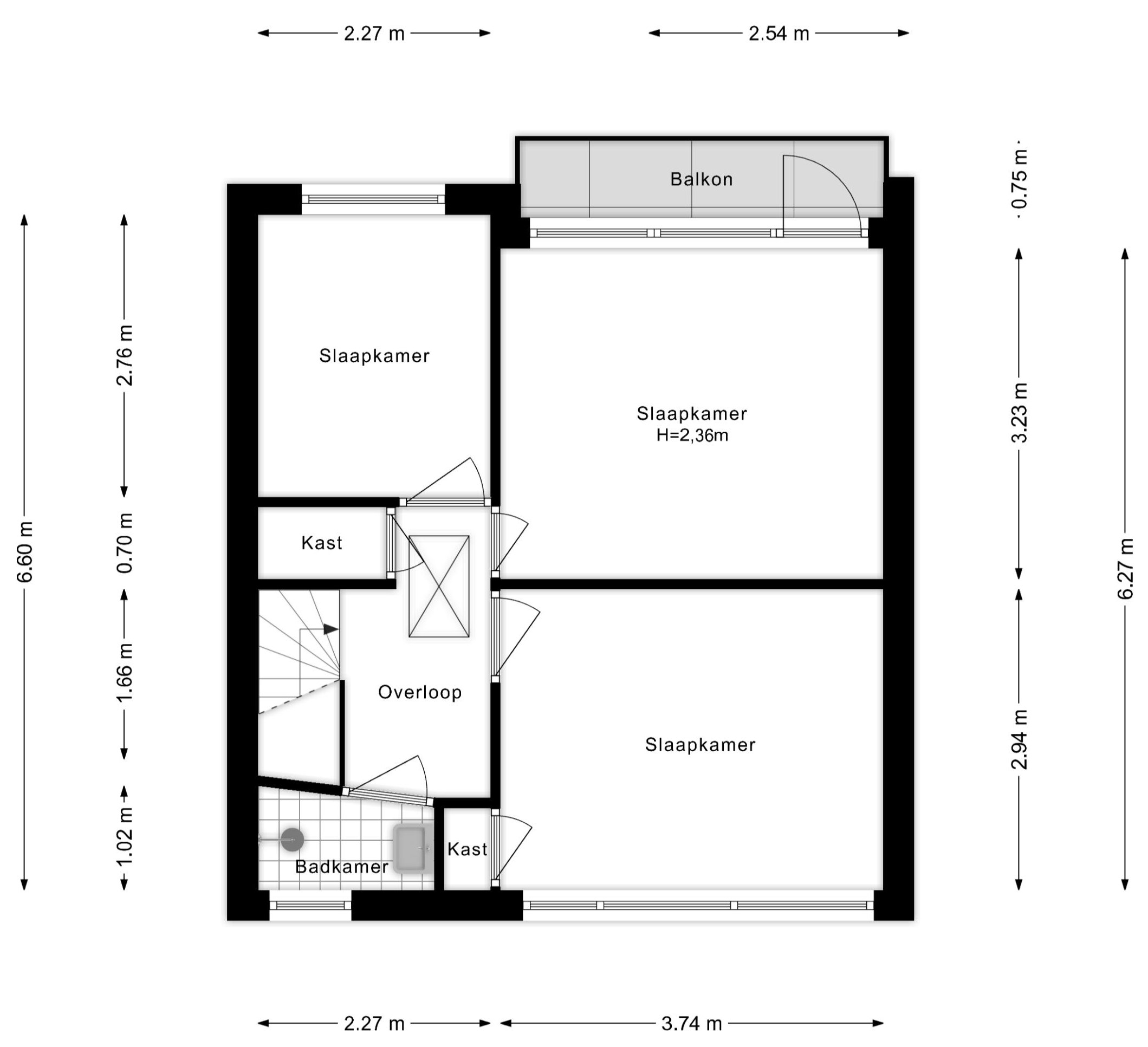
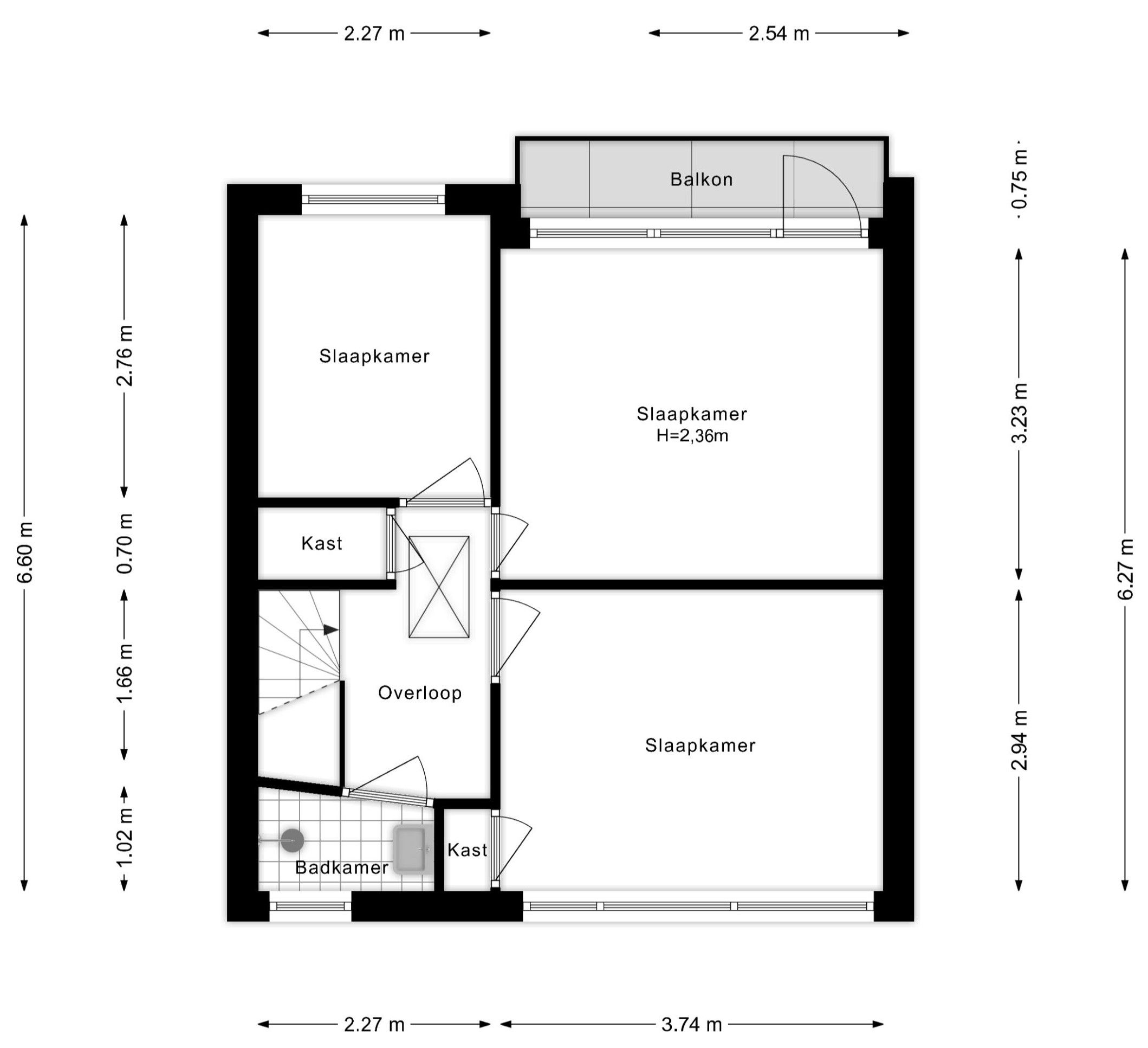
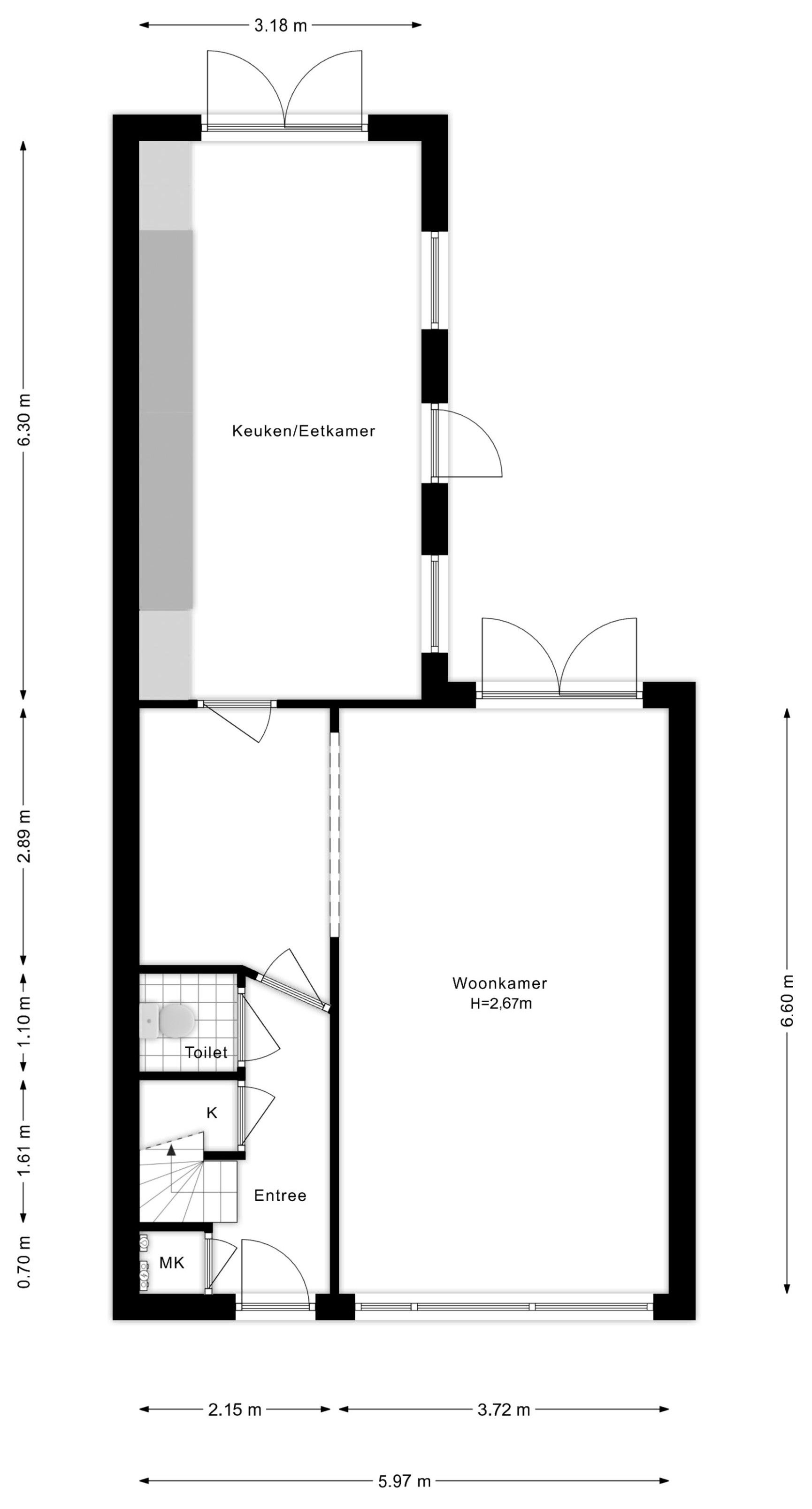
Indeling woning
Begane grond: Hal met garderobe en moderne toiletruimte met zwevend toilet. Kelderkast, geïmpregneerd tegen optrekkend vocht. Doorzonwoonkamer met houten vloer en toegang tot de royale aanbouw. Hier bevindt zich de moderne woonkeuken, voorzien van combimagnetron, stoomoven, koel-vriescombinatie, vaatwasser, afzuigkap, close-in boiler en wasmachineaansluiting. De gasaansluiting is aanwezig, maar er is geen gasfornuis geplaatst. Openslaande deuren geven toegang tot de diepe achtertuin met regenton, tuinbrede schuur (dak vernieuwd) en achterom.
Eerste verdieping: Overloop met laminaatvloer en vaste kast. Drie lichte slaapkamers, waarvan twee met vaste kast en één met balkon. Badkamer aan de voorzijde.
Tweede verdieping: Bereikbaar via vlizotrap. Bergvliering met CV-installatie (Intergas, eigendom, 2011) en omvormer voor de zonnepanelen. Mogelijkheid tot het plaatsen van een dakopbouw, waardoor een extra slaapkamer gerealiseerd kan worden.
Buitenruimte: Diepe achtertuin met recent vernieuwde schuur en achterom. De linker schutting is gezamenlijk met de buren geplaatst, de rechter schutting is eigendom.
Bijzonderheden:
- Goed onderhouden tussenwoning met aanbouw
- 18 zonnepanelen, energielabel A dus energiebewust wonen
- Moderne woonkeuken met openslaande deuren naar de tuin
- Drie slaapkamers, mogelijkheid tot vierde door dakopbouw
- Wanden volledig glad gestuukt
- Houten vloer op de begane grond, laminaat op de eerste verdieping
- Tuinbrede schuur met vernieuwd dak en achterom
- Voorzijde geschilderd in 2024, achterzijde in 2023
- Rustige ligging, nabij winkels, scholen, sport en natuur
- Uitstekende bereikbaarheid met trein en auto




















































